Control_Panel_Build_Series_Part_9_Design_-_Power_Distribution.pdf
Continuing in the design phase of the build, we focus on the power distribution portion of the design.
Transcript:
[0m:4s] Hi I'm Josh Bloom, welcome to another video in the RSP Supply education series. If you find that these videos are helpful to you, it certainly helps us out if you could give us a big thumbs up and subscribe to our channel.
[0m:15s] In today's video, we will move on to the next step in our panel fabrication series. If you haven't already seen the other videos in this series, we encourage you to go back and watch from the beginning so that you might better understand the entire process. The step in which we will focus on today is continuing on in the design phase of the build, but focusing on the wire schematic for the power distribution portion of the control panel.
[0m:40s] Now that the layout is complete, it's time to start figuring out how to make all these components work together as intended.
[0m:47s] For this portion of the design phase, it is best to utilize someone who has experience in developing and designing these types of systems such as an electrical engineer. If the system is designed incorrectly, it can be very dangerous and create hazards for anyone operating in and around the panel. So be aware of the hazards and dangerous conditions that can be associated with improper electrical design. With that knowledge in mind let's look at some of the things that it takes to put this design together.
[1m:16s] So, again, another reminder before we do any kind of electrical design, we want to make sure that we're working with and are supervised by someone who has experience in designing these types of systems, whether again that's an electrical engineer or an electrician who has experience designing these types of complex systems, you want to make sure you're working with someone who has that experience and knows what they're doing.

[1m:38s] Really increase the overall safety of your electrical design.
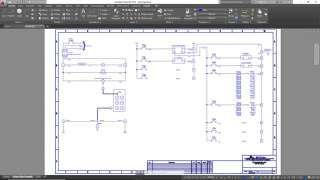
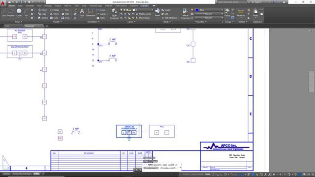
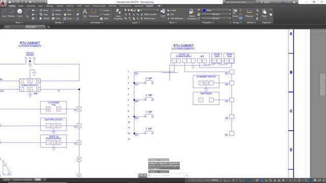
[1m:42s] This is the actual example of the power schematic that we're using in the panel that we are building. I wanted to show you this as kind of a way to understand what we actually designed for this particular panel, and I'll walk you through it just a little bit. So you might better understand.
[1m:57s] Everything I'm highlighting now is AC power everything that's being supplied AC power in our panel. Okay, so for example, you can see here I've got 120 Volt to AC power coming in going through a 15 AMP main circuit breaker,
[2m:12s] through a surge protector.
[2m:14s] You can see all these lines, these lines are actually going to be wires in our panel. These little blocks here are terminal blocks. You can see here I've got a little door switch that's supplying power to a light bulb.
[2m:25s] We've got an AC power fell relay and we also have a little receptacle that a UPS is plugged into.
[2m:32s] That UPS is then plugged into some more terminal blocks that are supplying power to some additional devices in our panel like our power supply and our PLC. You see I also have a few spare two AMP Breakers that we can use later on. You can see it from our power supply, we have DC power being supplied to other devices which I've highlighted here,
[2m:54s] including Ethernet switch and our touch screen,
[2m:57s] as well as some terminal blocks that require DC power in our panel. And then again, you can see I have some spare terminal blocks, or excuse me, some spare Breakers as well.
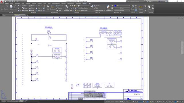
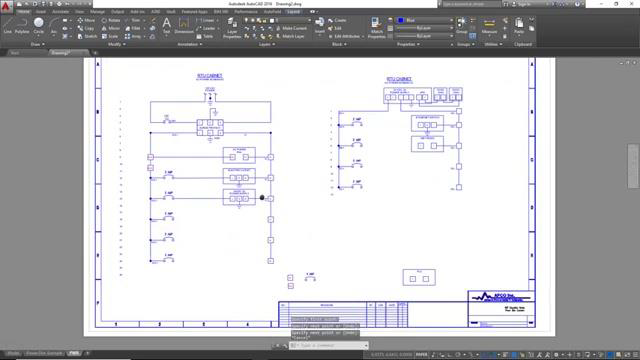
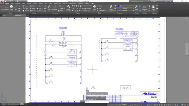
[3m:8s] Now, that we've kind of seen how we've designed the panel we're actually building, I want to show you an example drawing of how we might actually draw this power schematic. So, I've put together an incomplete drawing. It has a lot of the same types of components, but I really wanted to show you how we actually go about drawing our electrical design. So this is an incomplete drawing, but it can give you an idea of what we do when we are drawing our power schematic.

[3m:35s] Down here, you can see I've got these boxes and each box is kind of represented by a device. So we've got some terminal blocks here, we've got a little two AMP breaker that's a symbol, and then you can see I've got surge protector, power supply, and PLC with little terminals represented on each one.


[3m:50s] And then you can see all these other devices in this incomplete drawing.

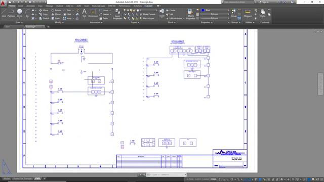
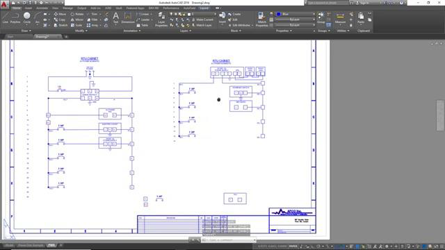
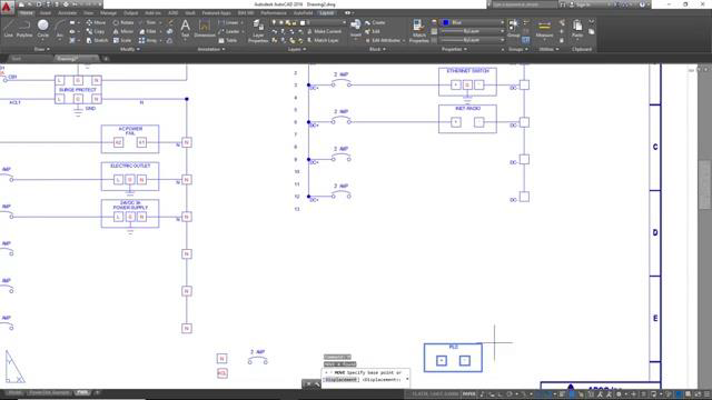
[3m:55s] So to start let's go to our surge protector let's go ahead and put that in place. We're going to take our surge protector and we're going to connect the neutral side to our incoming power. And then I'm just going to draw a line, again that's going to be a wire, from our main breaker to our hot terminal on our surge protectors. Now, you can see I've got a completed loop on the incoming side of my surge protection.

[4m:16s] I'm now going to complete the output side of the surge protector. So, I'm just going to draw a line from the hot terminal to my AC bus. That supplies power to all the AC devices. Again, just kind of connect the line on the neutral side, again, just kind of completing this loop and
[4m:34s] creating power for everything on that AC bus. Here you can see I'm sending power to my AC power Bell relay and then to my neutral, which completes that loop and I've got power coming in and now I've got power going out.
[4m:48s] We need to also add the power supply is a 24 Volt DC power supply. We need to get power to that power supply so we can get DC power to our panel. So you can see here, I'm just placing it where I would like in the actual drawing itself, and then I'll go ahead and connect up power through my two amp breaker, and then also to the neutral side of this bus so that I'm completing that loop.




[5m:12s] And again, by doing this, I am now providing power, excuse me, DC power to my panel. You can see this power supply is represented in two locations on the AC side and the DC side because it's inputting AC power, which I'm showing here everything is highlighted as AC power, and then this is all the DC power. This power supply is in letting AC power and outputting, DC power,




[5m:39s] which the Ethernet switch and this radio require DC power, as most panels do have something some devices that require AC power, excuse me, DC power. So you can see here we're just connecting the switch and this radio just kind of completing the loop. So now for the most part, almost completed this entire drawing. Just going to place this PLC in place, which is the last device that we want to put into this drawing. But this gives you a very good idea of how we go about just doing our basic power design. But the most important part, again, in this is not necessarily how we draw it, but it's making sure that the
power is laid out properly and safely. And again you want to work with someone who understands what they're doing.




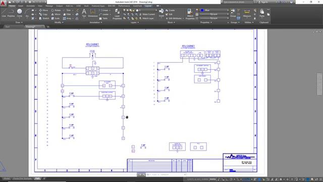
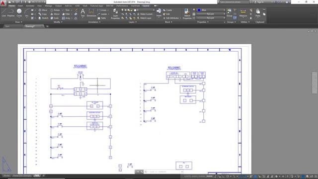
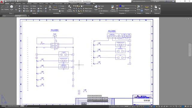
[6m:23s] Now, that we've done this example drawing, we can kind of go back to our main drawing. You might better understand how we've got to this point.

[6m:30s] But again, this is very similar in concept to the one that we just did. We went through all the same steps in drawing this power schematic as we did in our example drawing. So, at this point we can move on to the next steps in our design process. As you can see, there is a lot to consider when designing the wiring schematics for the power distribution portion of this control panel. This step is critical to the overall safety and functionality of the panel, and time should be taken to make sure that nothing is missed and you get it right. As always, we appreciate your interest and participation in this series and hope you continue to join us through the remainder of the build process. In our next video, we will continue on in the design phase of the control panel project focusing on the PLC and IO wiring, schematics portion of the design phase. So make sure to join us next time as we continue to build.
[7m:27s] For a full line of industrial control panel hardware and thousands of other products, please go to our website. For more information or other educational videos, go to RSPSupply.com, the Internet's top source for industrial hardware. Also, don't forget: like and subscribe.


