Control_Panel_Build_Series_Part_11_-_Hardware_Purchasing.pdf
In this step we will talk about how to properly assemble all of the hardware that is needed in an organized Bill of Materials list, we will then use this list to make all of the necessary purchases for the panel. We will also discuss possible hurdles you may encounter during this phase of the build, most notably, any lead time issues that may arise for the hardware you intend to order.
Transcript:
[0m:4s] Hi I'm Josh Bloom, welcome to another video in the RSP Supply education series. If you find that these videos are helpful to you, it certainly helps us out if you could give us a big thumbs up and subscribe to our channel.
[0m:16s] In today's video, we will move on to the next step in our panel fabrication series. If you haven't already seen the other videos in this series, we encourage you to go back and watch from the beginning so that you might better understand the entire process. The step in which we will focus on today is moving on from the design phase of the build process and focusing on procurement of all the hardware that will be needed for the pane we intend to build. Hopefully during the design and planning stages of the build process, you are able to determine all the necessary hardware that will be needed for your build.
[0m:53s] In this step, we will talk about how to properly assemble all the hardware that is needed in an organized bill of materials list. We will then use this list to make all of the necessary purchases for the panel.
[1m:6s] We will also discuss possible hurdles you may encounter during this phase of the build. Most notably any lead time issues that may arise for the hardware you intend to order, so let's get into it.
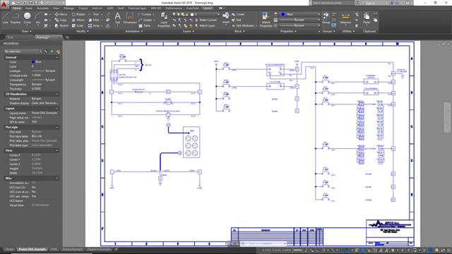
[1m:19s] The first thing that we need to do before we begin the purchasing process for our control panel is to make sure that we closely review, our electrical drawings and our layout drawings for our control panel.

[1m:33s] The reason this is so important is we want to make sure that we go through this step by step to make sure that we're accounting for all the different pieces of hardware that we show in our drawing. If our drawings are correct, we should be able to very accurately determine the hardware that will be needed for our particular control panel. So by reviewing these drawings, we can make sure that we don't miss any steps in this purchasing process. Once we've reviewed the drawings the next thing we need to do is create a bill of materials or BOM list. Now, this list is going to comprise of all the different materials we need for our particular control panel. You can see here, I have an example of what this might look like. You can see here in these lists we're going to have everything from part numbers to quantities to descriptions, and we want to make sure that this list has every single piece of hardware that we will need for our specific control panel so that nothing is missed. And we're going to refer to this list often to make sure that we're purchasing the hardware we need. Now, again we're going to have everything from the enclosure on this list down to fuses and the very minute little details of our panel. But we want to make sure all the hardware that we need is going to be on this bill of materials.

[2m:56s] At that point we're going to actually start the purchasing process. Now, the majority of the hardware that you're going to purchase can be found on RSPSupply.com as well as other suppliers. Now, some of the specialty hardware you may need to go to other suppliers, especially for things like the PLC and other types of specialty hardware, but most of what you are going to be looking for can be found on RSPSupply.com and we're going to show you the process that we go through when we are making these hardware purchases. One of the first things that we're going to do is going to create a job in the job manager tool within RSPSupply.com website. This gives us the ability to create a location, a unique location, for our specific job that we can have all of our hardware for this particular panel stored in one location that we can access now or at any point in the future. So now that I've created that job, I can start to add hardware to that particular job that I have created. So I'll give you an example of just how we do that we'll simply find whatever product that we're looking for







[4m:10s] and I can add that to the job, there's my example job, and then I can continue shopping. Go to some related products that I may need,




[4m:20s] simply add those to the job,


[4m:22s] and continue shopping, until I have all of the hardware that I need for this particular panel. Once I have all the hardware selected,




[4m:35s] I can simply go to my job and review, right here I'll go to that job, I'll review the hardware that we have selected. Obviously, in this case I'm just using some example hardware, you'd obviously have a lot more for an entire control panel, but this gives you a very good example of how easily this job manager tool



[4m:53s] actually works. Another great feature of using this tool that gives me the ability to export this job into Excel if I want to use that in a spreadsheet format or share it with someone else.
[5m:6s] I can also send this job to another user,

[5m:10s] and they can actually access this job manager tool within the RSPSupply.com website. So I can just put their email in here and they can access that if say I have a purchasing department, which is really nice. Another great feature of using this job manager tool is the ability to download all of the documentation or spec sheets or user manuals and even CAD drawing for each of these individual pieces of hardware. Now, this is awesome when we're talking about needing all this documentation for say submittals for our customer and user. So we can simply click on this download all documentation, you can see it downloads that in the form of a zip file, and then I can use that at a later point if I need those files or I need to submit them to my client or my end user, which is really nice. You can see here, it keeps running totals for me so I can easily track


[6m:5s] the overall cost of my job. I can come back at a later date and continue to add more hardware to this job. But when I'm ready to purchase I simply move the entire job to the shopping cart,
[6m:19s] and then I'm taking to the shopping cart, and I can securely check out.

[6m:24s] Now, this is the purchasing process in which we follow here at RSP Supply when we are designing and manufacturing industrial control panels. Now, a few things to consider when you're purchasing hardware, one of the biggest things is lead times. With any industrial hardware, this is something we always need to consider, especially with more specialty type hardware like a PLC or VFDs or things like that. Those things require longer lead time. So we want to make sure that we allow ourselves enough time to accommodate those potential delays that we may encounter. It's also important that we save any relevant documentation in regards to the orders that we place so that if we run into any problems later, we can access that documentation to prove our purchase to whoever our supplier might be. But once we've made our hardware purchases, we simply wait for the hardware to arrive, and at that point, we can actually move on to the next step in the fabrication process.



[7m:28s] As you can see, there are many things that need to be taken into account when purchasing all the hardware needed for any control panel. It is easy to miss ordering hardware that can be critical to the function of the panel but that doesn't always seem as obvious as other types of hardware being used during the build process. So, make sure to have a complete clear list of everything that is needed so that you can avoid this issue later on in the build process.
[7m:57s] As always, we appreciate your interest and participation in this series and hope you continue to join us through the remainder of the build process. In our next video, we will finally move on to actually working on the fabrication of this panel starting with the panels basic layout. So make sure to join us next time as we continue to build.
[8m:18s] For a full line of industrial control panel hardware and thousands of other products, please go to our website. For more information or other educational videos, go to RSPSupply.com, the Internet's top source for industrial hardware. And, don't forget: like and subscribe.


